TOP ponuka
Pozemok Nižný Klátov, okr. Košice - okolie
Pozemok Nižný Klátov, okr. Košice - okolie 119 000 EUR

Garáž Košice I - Staré Mesto, ul. Vojenská
Garáž Košice I - Staré Mesto, ul. Vojenská 100 EUR/mesiac

Pozemok Jasov, okr. Košice - okolie
Pozemok Jasov, okr. Košice - okolie 35 000 EUR

3 izbový byt, Košice I - Sever, ul. Hlinkova
3 izbový byt, Košice I - Sever, ul. Hlinkova 225 000 EUR

3 izbový byt, Košice I - Sídlisko Ťahanovce, ul. Bukureštská - REZERVOVANÝ
3 izbový byt, Košice I - Sídlisko Ťahanovce, ul. Bukureštská - REZERVOVANÝ 195 000 EUR

Nebytový priestor Rázusová, Košice IV
ID: 250045

Nebytový priestor Rázusová, Košice IV

Záujem o nehnuteľnosť:
Meno:
Tel.:
Email:
lokalita:
KOŠICE - JUH
ulica:
Rázusová
veľkosť:
úžitková plocha:
113,48 m2
výmera pozemku:
počet podlaží:
1
typ:
tehla
kúrenie:
ústredné plynové
elektrina:
220/380V
voda:
mestský vodovod
plyn:
na pozemku
kanalizácia:
mestská kanalizácia
prístupová cesta:
asfaltová
maklér:
Ing. Jana Javorová / 0905307037 / jana.javorova@javorreal.sk
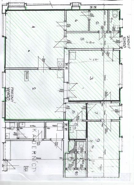
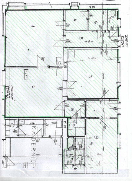
Javorreal ponúka na prenájom nebytový priestor, Košice IV v budove v širšom centre mesta. Dom je po rekonštrukcii. Ide o 4 miestnosti (1,2,3,9), ku ktorým prislúcha 2x vstupná chodba (5,7), kuchynka (4), 2x miestnosť so sprchou (6,10b), 2x WC (6a,10a), technická miestnosť (8) a kotolňa (8a). Označenie miestností je v pôdoryse. Celková výmera priestoru je 113,48 m2. Priestor má samostatný vchod z ulice a 2 vchody z dvora budovy.  Cena prenájmu je 1135 eur/ mesiac, t.j. 10 eur/m2/mesiac. Zálohy za služby - vodné, stočné, údržba a obsluha plynového kotla, odvoz smetia, požiarna ochrana predstavujú cca 52 eur/mesiac. Priestor vzhľadom na výbornú polohu domu, dobrú dostupnosť MHD je vhodný najmä ako kancelária pre notára, advokáta, obchodný priestor, kozmetika, lekáreň, zdravotná ambulancia a pod.. Kontakt: +421905307037
cena: 1 135 EUR/mesiac

Copyright © 2009 AMIS | All rights reserved | e-mail